气动衬氟调节球阀Q641F46气动调节型衬氟球阀的结构原理
气动衬氟调节球阀Q641F46气动调节型衬氟球阀/气动衬PFA调节球阀Q641PFA气动调节型衬PFA球阀/气动衬氟球阀Q641F46-16C气动衬氟O型调节球阀/带定位器气动带手轮调节型衬氟球阀/气动衬氟切断球阀/断电停气故障自动复位单作用气动衬聚全氟乙丙烯球阀/气动氟塑料衬里球阀/单作用气动衬氟球阀/气动耐酸碱耐腐蚀球阀/故障自动复位单作用气动衬氟切断球阀/防爆气动调节型衬氟球阀/气动带手动衬氟调节球阀由气动执行器和衬氟F46或衬PFA球阀组成,它与阀门定位器配套使用,可实现比例调节;与二位五通电磁阀及控制箱配套使用,可实现开关控制,增加了蜗轮手动装置防止阀门气缸无气源状态手动可操作阀门的开关,使其气动阀门更安全可靠。气动调节型衬氟球阀有气动V型衬氟调节球阀和气动O型衬氟调节球阀两种,V型球阀阀芯设计成带有特殊形式的V型口可根据不同的角度来实现调节精度。气动衬氟球阀适用于各种控制场合。额定流量系数大,可调比大,密封性能优越,结构紧凑,体积小,可竖卧安装等优点。由于阀芯和阀座之间是无间隙回转,所以具有很大的剪切及自洁能力,尤其适用于含有纤维性或软质颗粒的悬浮液的控制。在与流体接触的阀体内壁和阀内组件均采用高温模压衬氟塑工艺,包覆一层聚全氟乙丙烯(F46)、聚四氟乙烯(PTFE)、 可溶性聚四氟乙烯(PFA)等防腐蚀材料,能达到切断腐蚀性介质与阀体外壳的接触,具有密封性能好,动作灵敏、流体通道呈V型、压降损失小、阀容量大、流量特性,配用电气阀门定位或气动阀门定位器,可实现对工艺管路流体介质的自动调节控制,广泛适用于酸、碱等强腐蚀性介质和有毒、易挥发、易渗透等气体、液体类介质的控制。

特点:
2、流通能力大,且介质流向不受限制。
3、密封性能好、泄漏量小:密封阀座采用聚四氟乙烯,具有可靠的密封性和自润滑性,泄漏量低。
4、除适用于一般的气、液体外,更适用于高粘度以及带有纤维状和悬浮软质颗粒的介质。
5、结构简单维修方便。
6、配气动执行结构及相关附件,方便各种环境使用。

结构原理:
1、以压缩空气为能源动力完成开关动作,当压缩空气从气动执行器的管咀输入气动执行器内,气体会推动活塞向两端运动,通过齿条带动旋转轴上的齿轮转动,从而开启阀门,气动执行器关闭时,气源是从反向管咀进入,将推动向中间运动,带动阀门关闭,此气缸为双作用气缸。
2、以压缩空气为能源动力完成开关动作,当压缩空气从气动执行器的管咀输入气动执行器内,气体会推动活塞向两端运动,通过齿条带动旋转轴上的齿轮转动,从而开启阀门,当反向管咀排气后由弹簧推动活塞带动阀门关闭。此气缸为单作用气缸。
3、气动执行器的执行机构和调节机构为统一整体,执行机构的部件可选择包膜、活塞或齿轮齿条,其中齿轮齿条是最为常用。齿轮齿条执行机构的结构紧凑、输出推动力大、动作平稳可靠,在三中执行机构部件里是性能最均衡的一个。
主要技术参数:
|
公称通径DN
|
15
|
20
|
25
|
32
|
40
|
50
|
65
|
80
|
100
|
125
|
150
|
200
|
250
|
300
|
|
|
额定流量系数(KV)
|
V型
|
7
|
15
|
25
|
50
|
70
|
100
|
180
|
270
|
440
|
680
|
990
|
1760
|
2750
|
3900
|
|
O型
|
19
|
38
|
72
|
110
|
170
|
270
|
450
|
510
|
940
|
1400
|
2200
|
3500
|
5650
|
8000
|
|
|
配气动执行机构
|
双作用
|
AT52
|
AT52
|
AT63
|
AT63
|
AT75
|
AT83
|
AT92
|
AT105
|
AT125
|
AT140
|
AT160
|
AT210
|
AT270
|
AT300
|
|
单作用
|
AT63S
|
AT63S
|
AT75S
|
AT83S
|
AT92S
|
AT105S
|
AT125S
|
AT140S
|
AT160S
|
AT160S
|
AT190S
|
AT240S
|
AT300S
|
AT350S
|
|
|
配电动执行机构
|
精小型
|
05
|
10
|
16
|
20
|
40
|
50
|
60
|
100
|
160
|
200
|
||||
|
流量特性
|
V型
|
近似等百分比
|
|||||||||||||
|
O型
|
快开
|
||||||||||||||
|
公称压力(MPa)
|
0.6MPa、1.0MPa、1.6MPa、2.5MPa、150Lb
|
||||||||||||||
|
球芯转角
|
90°
|
||||||||||||||
|
允许压差
|
为介质工作压力
|
||||||||||||||
|
允许泄露等级
|
软密封:VI(或无泄漏)
|
||||||||||||||
|
动作时间(S)
|
0.5-7
|
||||||||||||||
|
信号接管螺纹/操作压力
|
M10×1/400-800KPa(0.4-0.8MPa)
|
||||||||||||||
主要性能技术指标:
|
项目
|
技术指标
|
|
|
基本误差(%)
|
不带定位器
|
带定位器
|
|
回差(%)
|
±10
|
±1.5
|
|
死区(%)
|
8
|
1.5
|
|
泄漏量
|
6
|
0.6
|
|
允许泄漏量
|
VI级(或无泄漏)
|
10-4X阀额定容量
|
|
VI级(或无泄漏)
|
5x10-6x阀额定容量
|
|
|
可配附件
|
电气定位器或电/气转换器、空气过滤减压器、电磁阀、手轮机构等
|
|
|
额定流量系数Kv偏差(%)
|
±20
|
|
主要零件常用材料:
|
名称
|
材质
|
|
阀体、阀盖、球芯
|
ZG230-450、ZG0Cr18Ni9
|
|
衬里材料
|
F46、F4、PFA、PO、PE、PP
|
|
密封圈、填料、垫片
|
聚四氟乙烯、柔性石墨
|
|
气动执行机构
|
组合件(见气动说明书)
|
|
电动执行机构
|
组合件(见电装说明书)
|
单作用气动执行器和双作用气动执行器的区别:
气动球阀中单作用和双作用指的是气动球阀所配气动执行器可分为单作用和双作用。其区别在于:单作用的气缸内有弹簧,而双作用内没有。因此单作用气动执行器的价格比双作用气动执行器的价格要高。
单作用气动执行器一般分为常开型和常闭型(常开型:通气关,断气开;常闭型:通气开,断气关),也就是说,在安装之前有一个设定,设定其为开或者关,如果是常开的,那就是在通气的情况下气动执行器关闭阀门,如果气源出现故障或者突然停电,单作用气动执行器靠弹簧自动复位为开的状态,也就是说会回到它的设定状态,设定为关,则会回到关的状态,一般在危险的工况中使用较多,比如输送可燃气体或可燃液体,在失去气源又出现紧急情况的时候,单作用气动执行机构能自动复位把危险降低,而双作用就不能复位。
双作用气动执行器在通气的情况下气动执行器打开阀门,当要关闭阀门的时候另外一边通气才能关闭,双作用气动执行器是靠气缸工作复位的,在失去气源的时候只能保持原位。

衬里塑料防腐蚀性能介绍:
1、聚全氟乙丙烯FEP(F46)
特点:F46树脂力学、电性能和化学稳定性基本上与聚四氟乙烯相似的,但突出的优点是冲击韧性高,即使带缺口的试样也冲不断,有很好的耐候和辐射性,易于成型加工,除了使用温度低于F4外,其他性能都保持了F4的优良性能,因而使其成为代替聚四氟乙烯的材料。
2、聚四氟乙烯PTFE(F4)
特点:F4树脂由于分子化学链结构的特殊性,使其具有很强的耐腐蚀性和较高的耐温性,但聚四氟乙烯具有加工困难的不足,生产过程中,报废率较高,因此加工成本要高于F46。
3、可溶性聚四氟乙烯(PFA)
特点:PFA树脂为了克服聚四氟乙烯加工成型困难的不足,而发展的一个新品种,*保持了F4的优良性能。良好的机械、电绝缘性能,优点是容易加工成型,使其成为代替聚四氟乙烯的材料。
4、增强聚丙烯(FRPP)
特点:是较轻的塑料之一,其屈服强度、拉伸强度和压缩强度均优于聚乙烯,有突出的刚性、耐热性、易成型等特点。改性后冲击性、流动性都得到提高。
5、聚烯烃(PO)
PO具有较好的耐腐蚀和易加工性能,广泛用于各类滚塑成型的防腐蚀设备,也用于模压衬里阀门。
执行机构参数:
|
执行器型号
|
GT、AT系列单双作用气动执行器
|
|
供气压力
|
0.4~0.7MPa
|
|
气源接口
|
G1/4"、G1/8"、G3/8"、G1/2"
|
|
环境温度
|
-30~+70℃
|
|
作用形式
|
单作用执行机构:气关式(B)--失气时阀位开(FO);气开式(K)--失气时阀位关(FC) 双作用执行机构:气关式(B)--失气时阀位保持(FL);气开式(K)-- 失气时阀位保持(FL) |
执行机构:
采用GT、AT、AW型系列气动执行器,有双作用式和单作用式(弹簧复位),齿轮齿条传动,安全可靠;大口径阀门采用系列AW型气动执行器拔叉式传动,结构合理,输出扭矩大,有双作用式和单作用式。
1、齿轮式双活塞,输出力矩大,体积小。
2、气缸选用铝合金材料,重量轻、外形美观。
3、可在顶部、底部安装手动操作机构。
4、齿条式连接可调节开启角度、额定流量。
5、执行器可选带电讯号反馈指示及各类附件以实现自动化操作。
6、IS05211标准连接为产品的安装更换提供了方便。
7、两端调的节螺钉可使标准产品在0°和90°有±4°的可调范围。确保与阀门的同步精度。

附件的选项:
根据不同控制和要求可选择下列附件:
切断型附件:单电控电磁阀、双电控电磁阀、限位开关回讯器。
调节型附件:电气定位器、气动定位器、电气转换器。
气源处理附件:空气过滤减压阀、气源处理三联件。
手动机构:HVSD手操机构

配套气动执行器及气动附件功能和用途(可选):
1、双作用执行器:控制阀门的开启和关闭。
2、单作用执行器(弹簧复位):在电路气路切断或者有故障时自动关闭阀门。
3、单控电磁阀:供电时阀门打开或者关闭,断电时阀门关闭或者打开(可提供防爆型)。
4、双控电磁阀:一个线圈通电时阀门打开,另一个线圈通电时阀门关闭,有记忆功能(可提供防爆型)。
5、限位开关回信器:远距离传送阀门开和关位置信号(可提供防爆型)。
6、电气定位器:根据电流信号(4-20mA)的大小对阀门的介质流量调节控制(可提供防爆型)。
7、气动定位器:根据气压信号(标准0.02-0.1MPa)的大小对阀门的介质流量调节控制。
8、电气转换器:将电流信号转换成气压信号,与气动定位器配套使用(可提供防爆型)。
9、气源处理三联件:包括空气减压阀、过滤器、油雾器、对气源稳定、清洁、运动部件起润滑作用。
10、手动操作:自动控制在不正常情况下可以手动操作阀门的启闭。
单电控电磁阀和双电控电磁阀的区别:
单电控:即只有一个电磁线圈,一般用在2位3通电磁阀,线圈电压等级一般采用DC24V、AC220V等。 两位三通电磁阀分为常闭型和常开型两种,常闭型指线圈没通电时气路是断的,常开型指线圈没通电时气路是通的。 常闭型两位三通电磁阀动作原理:给线圈通电,气路接通,线圈一旦断电,气路就会断开,这相当于“点动”。 常开型两位三通单电控电磁阀动作原理:给线圈通电,气路断开,线圈一旦断电,气路就会接通,这也是“点动”。
双电控:即有两个电磁线圈,一般用在两位五通电磁阀,两位五通双电控电磁阀动作原理:给正动作线圈通电,则正动作气路接通(正动作出气孔有气),即使给正动作线圈断电后正动作气路仍然是接通的,将会一直维持到给反动作线圈通电为止。 给反动作线圈通电,则反动作气路接通(反动作出气孔有气),即使给反动作线圈断电后反动作气路仍然是接通的,将会一直维持到给正动作线圈通电为止。这相当于“自锁”。 基于两位五通双电控电磁阀的这种特性,在设计机电控制回路或编制PLC程序的时候,可以让电磁阀线圈动作1~2秒就可以了,这样可以保护电磁阀线圈不容易损坏。
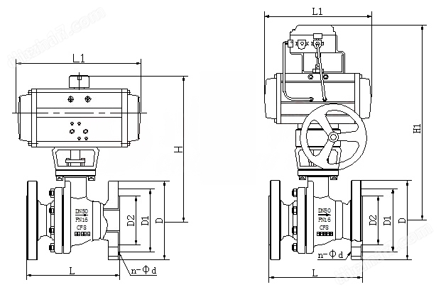
外形结构图:

主要外形连接尺寸:
|
公称通径DN(mm)
|
主要尺寸
|
法兰尺寸
|
|||||||||
|
PN1.6MPa
|
PN2.5MPa
|
||||||||||
|
L
|
H
|
L1
|
D
|
D1
|
D2
|
n-φd
|
D
|
D1
|
D2
|
n-φd
|
|
|
15
|
130
|
185
|
140
|
95
|
65
|
46
|
4-14
|
95
|
65
|
46
|
4-14
|
|
20
|
140
|
191
|
140
|
105
|
75
|
45
|
4-14
|
105
|
75
|
56
|
4-14
|
|
25
|
150
|
193
|
140
|
115
|
85
|
65
|
4-14
|
115
|
85
|
65
|
4-14
|
|
32
|
165
|
212
|
164
|
140
|
100
|
76
|
4-18
|
140
|
100
|
76
|
4-18
|
|
40
|
180
|
217
|
164
|
150
|
110
|
84
|
4-18
|
150
|
110
|
84
|
4-18
|
|
50
|
200
|
260
|
190
|
165
|
125
|
99
|
4-18
|
165
|
125
|
99
|
4-18
|
|
65
|
220
|
293
|
210
|
185
|
145
|
118
|
4-18
|
185
|
145
|
118
|
8-18
|
|
80
|
250
|
323
|
247
|
200
|
160
|
132
|
8-18
|
200
|
160
|
132
|
8-18
|
|
100
|
280
|
382
|
276
|
220
|
180
|
156
|
8-18
|
235
|
190
|
156
|
8-22
|
|
125
|
320
|
468
|
348
|
250
|
210
|
184
|
8-18
|
270
|
220
|
184
|
8-26
|
|
150
|
360
|
510
|
378
|
285
|
240
|
211
|
8-22
|
300
|
250
|
211
|
8-26
|
|
200
|
400
|
655
|
524
|
340
|
295
|
266
|
12-22
|
360
|
310
|
274
|
12-26
|
|
250
|
630
|
/
|
/
|
405
|
355
|
319
|
12-26
|
425
|
370
|
330
|
12-30
|
|
300
|
750
|
/
|
/
|
460
|
410
|
370
|
12-26
|
485
|
430
|
389
|
16-30
|
安装使用注意事项:
1、取掉法兰端两边的保护盖,在阀门打开的状态下进行冲洗清洁。
2、安装气动调节阀前应按规定的信号(电动或气动)进行整机测试(防止因运输产生振动影响使用性能),合格后方能够可上线安装(接线按线路图)。
3、准备与管道连接前,须冲洗和清除干净管道中残存的杂质(这些物质可能会损坏阀座和球)。
4、安装期间,请不要用气动阀的执行机构部分作为起重的吊装点,以避免损坏执行机构及部件。
5、气动球阀应安装在管道的水平方向或垂直方向。
6、安装点附近的管道不可有低垂或者承受外力的现象,可以用管道支架或者支撑物来消除管线的偏离。
7、与管道连接后,请用规定的扭矩交叉锁紧法兰连接螺栓。
8、如有阀体衬有防腐层,安装在管道上时,应采用耐腐蚀软垫,并注意不使阀体法兰密封面受损。
9、对填料压盖应定期检查,防止因渗漏腐蚀而损坏其它零件和造成事故。
上海乔邑阀门主要生产销售【气动衬氟调节球阀Q641F46气动调节型衬氟球阀/气动衬PFA调节球阀Q641PFA气动调节型衬PFA球阀/气动衬氟球阀Q641F46-16C气动衬氟O型调节球阀/带定位器气动带手轮调节型衬氟球阀/气动衬氟切断球阀/断电停气故障自动复位单作用气动衬聚全氟乙丙烯球阀/气动氟塑料衬里球阀/单作用气动衬氟球阀/气动耐酸碱耐腐蚀球阀/故障自动复位单作用气动衬氟切断球阀/防爆气动调节型衬氟球阀/气动带手动衬氟调节球阀】,备有大量库存现货直销!我们一直秉持“合理价格、贴心服务”的理念,努力为用户提供可靠的产品和完善的售后服务。本文中所有文字、数据、图片仅供参考。
















本文地址: https://www.xsyiq.com/60052.html
网站内容如侵犯了您的权益,请联系我们删除。